坂之上6丁目A建売
ポイント
■売主物件 ■南向きで陽当たり良好 ■徒歩10分圏内にスーパー・コンビニあり 〇JR坂之上駅まで徒歩12分 〇セブンイレブン鹿児島坂之上6丁目店まで徒歩1分 〇タイヨー坂之上店まで徒歩6分 〇タイヨー光山店まで徒歩8分 〇ファミリーマート坂之上店まで徒歩2分 〇ジョイフル鹿児島坂之上店まで徒歩8分
物件名 |
坂之上6丁目A建売 |
|---|---|
所在地 |
鹿児島市坂之上6丁目6-21(旧住居表示) |
間取り |
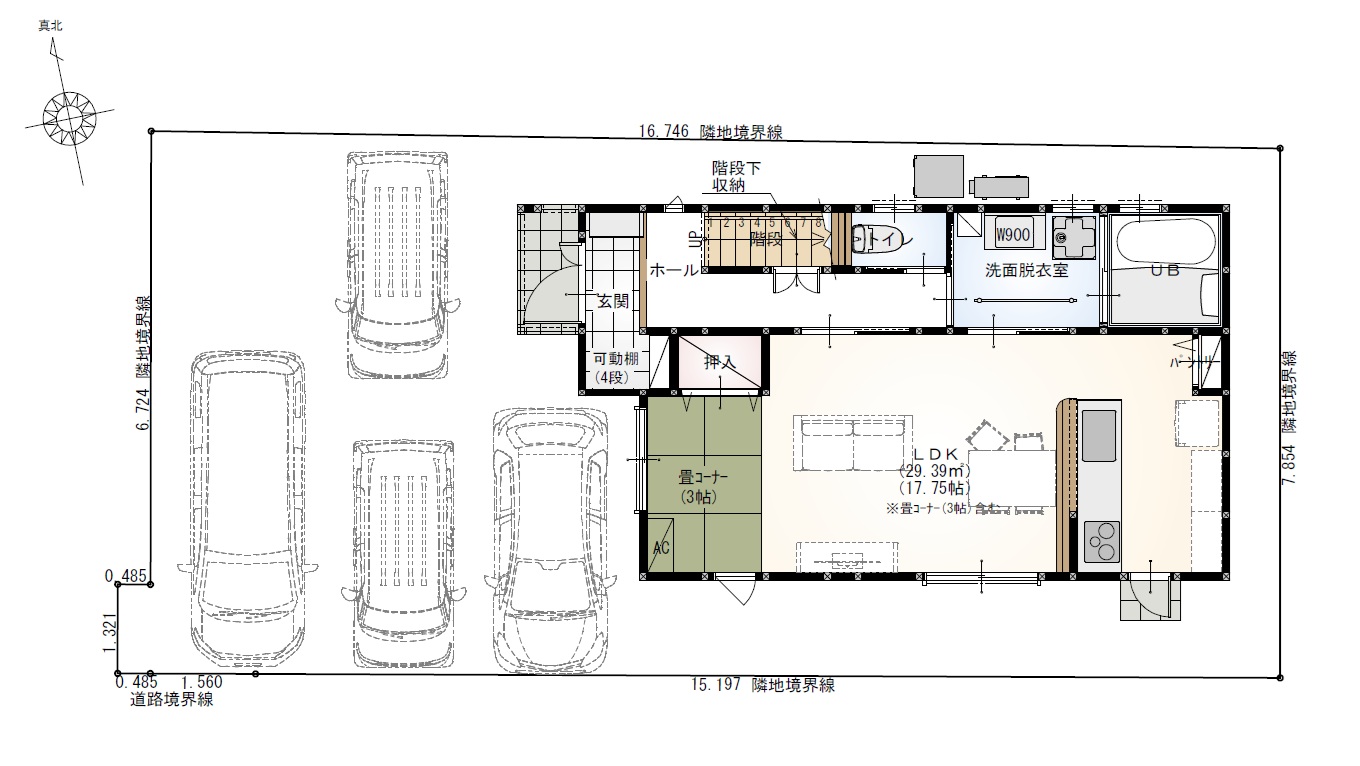
3LDK+畳コーナー |
備考 |
校区 福平小学校 福平中学校 |
2,880万円
物件種目 |
新築一戸建て |
|---|---|
土地権利 |
所有権 |
構造・規模 |
木造 |
地目 |
宅地 |
面積 |
延床面積91.49㎡(27.67坪)/施工面積96.82㎡(29.29坪) |
都市計画 |
市街化区域 |
用途地域 |
第1種低層住居専用地域 |
間取内訳 |
LDK17.75帖(畳コーナー3帖含む)洋6.75・6・5.25帖 |
建蔽率 |
50% |
土地面積 |
132.94㎡(40.21坪) |
容積率 |
80% |
最寄駅 |
JR/坂之上駅 徒歩12分 |
交通 |
バス/別府中央(鹿児島交通・あいばす)徒歩2分 |
築年月 |
2026年4月下旬完成予定 |
引渡日 |
相談 |
駐車場 |
4台可 |
建築確認番号 |
第R07SHC121721号 |
現況 |
着工中 |