西陵1丁目C建売
ポイント
■安心の売主物件 ■西陵小学校まで徒歩1分 ■コープ西陵店まで徒歩7分で利便性の良い立地 〇東南向きで陽当たり良好 〇駐車スペース3台分 〇前面道路広々8m!
物件名 |
西陵1丁目C建売 |
|---|---|
所在地 |
鹿児島市西陵1丁目12-3(旧住居表示) |
間取り |
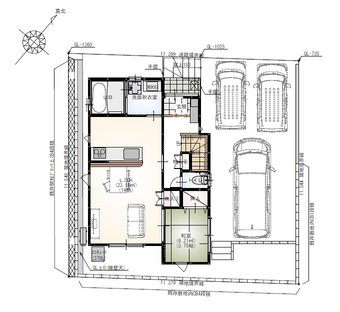
4LDK |
備考 |
校区 西陵小学校 西陵中学校 |
3,180万円
物件種目 |
新築一戸建て |
|---|---|
土地権利 |
所有権 |
構造・規模 |
木造 |
地目 |
宅地 |
面積 |
延床面積 87.35㎡(26.42坪)/施工面積92.30㎡(27.92坪) |
都市計画 |
市街化区域 |
用途地域 |
第1種低層住居専用地域 |
間取内訳 |
LDK14帖 和3.75帖 洋6・5・5帖 |
建蔽率 |
50% |
土地面積 |
125.73㎡(38.03坪) |
容積率 |
80% |
最寄駅 |
JR/広木駅 車で10分 |
交通 |
バス/西陵1丁目(南国交通)徒歩6分 |
築年月 |
2026年8月下旬完成予定 |
引渡日 |
相談 |
駐車場 |
3台以上可 |
建築確認番号 |
第R08SHC105823号 |
現況 |
着工中 |